Opdrachtgever:
Particulier
Aannemer:
Hartman Bouwbedrijf BV, Heusden
Projectteam:
Frans Compen, Johan van der Rijt, Rob Geraerts, Bjorn Beekhuizen
Omvang:
Woonhuis
Oplevering:
2018


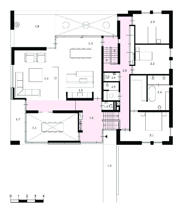
Plattegrond
In de groene omgeving waar het woonhuis te Asten is gesitueerd, was een plan met een bouwhoogte van 2 volledige verdiepingen niet voor de hand liggend. De specifieke vorm van het voorgeschreven bouwvlak en het woonprogramma van de opdrachtgever hebben op een voor de hand liggende wijze geleid tot een ontwerp gebaseerd op het split-level principe.
Het plan is eenvoudig en helder van opzet, maar heeft niet te min veel ruimtelijke kwaliteit. Het gebouw heeft een rechthoekige bouwmassa waarbinnen slaapvleugel met eronder gesitueerd het souterrain, de rug van het plan vormen. Door middel van 2 expressieve trappen, één aan de voorzijde en één aan de achterkant van het huis, wordt dit bouwdeel met het woongedeelte/werkruimte verbonden. Dit woongedeelte waarin ook de entree van het woonhuis is gesitueerd kenmerkt zich door de kwaliteit van de sfeervolle leefruimten met hun functionele ruimtelijkheid, mede als gevolg van de plaatselijke aanwezige hoogte van 4,5 meter.
De architectuur van het gebouw kenmerkt zich door een eenvoudige bouwmassa opgetrokken in een bijzondere baksteen. Waar de functie dit verlangt is een uitholling van de bouwmassa niet geschuwd, zoals de achterzijde van het plan laat zien.














